DOSSIER D'AIDE FINANCIERE A L'INSONORISATION déposé auprès d'ADP
 

Un dossier de demande d'aide financière pour l'insonorisation pour les riverains de l'aéroport Paris-Charles de Gaulle a été déposé auprès d'ADP (Aéroport de Paris) le 23 décembre 2013 pour ce logement puisque la commune d'Enghien se situe en zone concernée. Le taux de prise en charge est de 100% dans la limite du plafond réglementaire en ayant choisi l'assistance à maîtrise d'ouvrage. Le 23 janvier 2015, ADP a accusé réception de ce dossier au demandeur.

Le 10 mai 2017 la Direction de l'environnement et du développement durable du groupe ADP a notifié au propriétaire sa décision de lui accorder une aide à l'insonorisation au titre du diagnostic acoustique, telle que chiffrée pour la zone 3 dans laquelle se trouve le bien immobilier, pour un montant clairement défini.

Le 31 mai 2017 l'une des sociétés agrées par ADP fait parvenir son diagnostic acoustique, lequel a été réexpédié à ADP dans le respect de la procédure, laquelle suit son cours.

Une telle aide est prévue notamment pour le renouvellement des portes et fenêtres mais aussi pour une isolation phonique en toiture.

 
 
DIAGNOSTIC SURFACES
 
 
DIAGNOSTIC ÉNERGÉTIQUE
 
 
Les diagnostics ont été réalisés par :
 

Autres informations générales :
 
  CHARGE MENSUELLE POUR LA GESTION PAR LE SYNDIC (cabinet professionnel) :  
 

99.16€ par mois en 2017

 
  TAXE FONCIÈRE :  
 

572.00 € en 2017 (cinq cent soixante douze euros)

 
  TOITURE :  
 

Tuiles mécaniques.

 

CHAUFFAGE AU GAZ :

 

Compteur à gaz individuel, à l'intérieur de la maison, dans l'entrée de la cave

  Chaudière à gaz individuelle, (voir page sous-sol)
 
  COMPTEUR D'EAU :  
 

Compteur d'eau individuel, à l'extérieur de la maison.

 
 
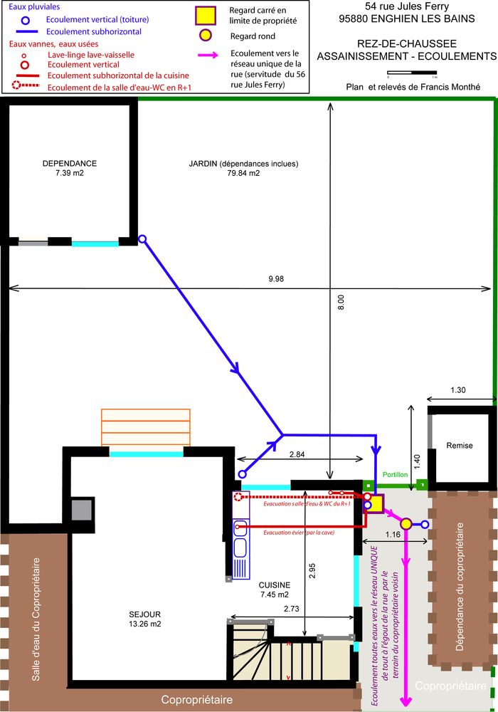
ASSAINISSEMENT : TOUT-A-L'EGOUT